San Jose Modern Farmhouse Designed for Family Living

With real estate prices continuing to rise in San Jose, this family made a deliberate decision. Rather than purchasing a larger home, they chose to demolish their existing house and build a new two-story residence tailored precisely to their needs. The goal was a modern farmhouse that felt warm, refined, and practical, offering more space for everyday life and room for a growing teenage son.

Client
CM Residence

Year
2024

The Challenge

The existing home no longer supported the family’s lifestyle. Limited space, low ceilings, and an outdated layout made it clear that a new build was the right path forward. The new home needed to feel generous without feeling oversized, modern without feeling cold, and durable enough for long-term family living.

Key goals included

  • A two-story layout to maximize space and functionality

  • A modern farmhouse aesthetic with board-and-batten siding, stone veneer, and black window frames

  • Bright, open interiors with a strong connection between spaces

  • A design that could move efficiently through San Jose’s planning and building permit process, which does not require formal design review

The opportunity was to focus fully on architecture and livability, without the added complexity of design review hearings.

The Approach

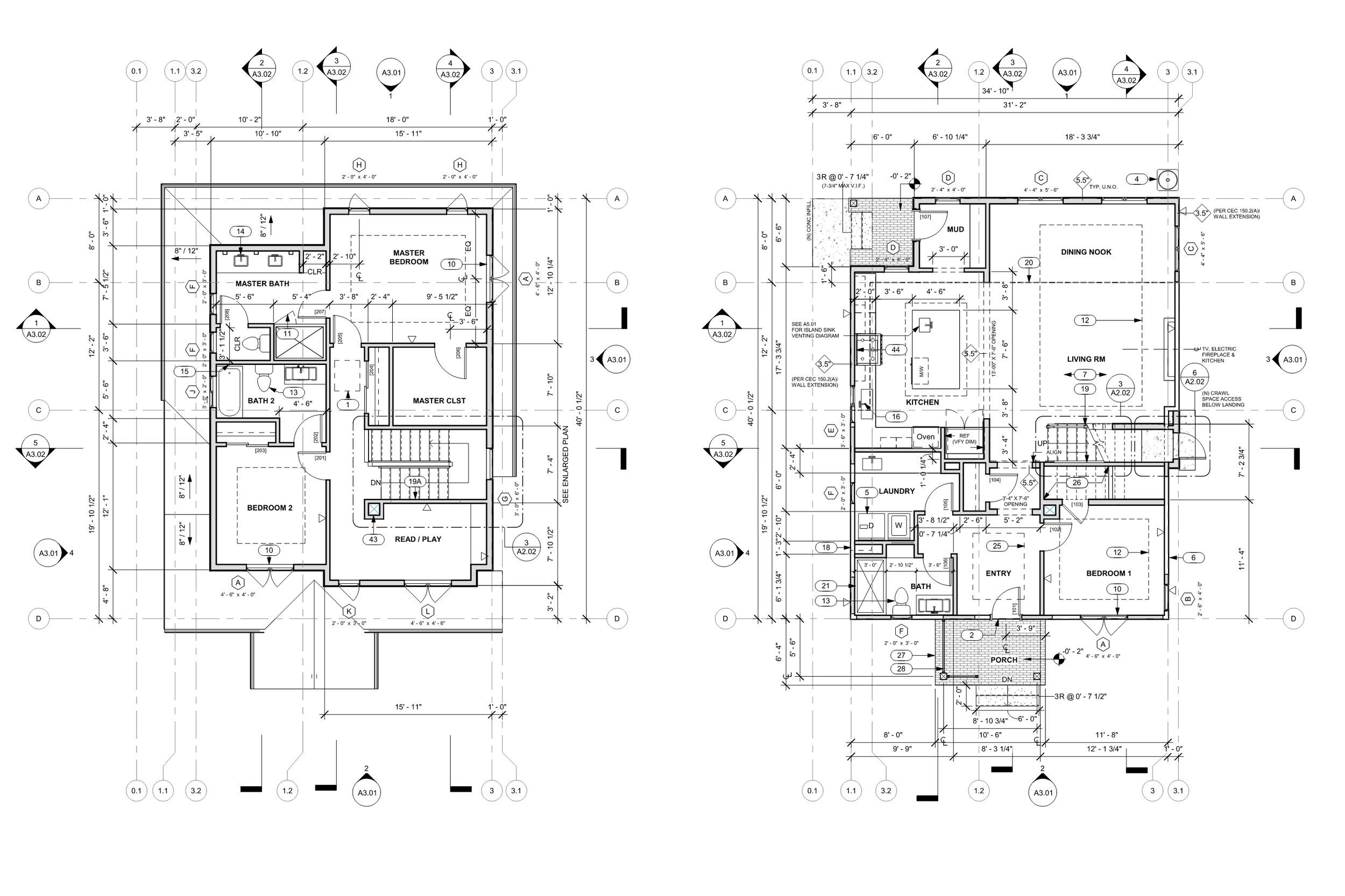
With no formal design review required in San Jose, the design process emphasized clarity, proportion, and buildability from the outset. We developed a two-story layout that organized the home around open shared spaces while creating dedicated areas for privacy and focus, especially important for a teenager needing room to study, relax, and grow.

The exterior architecture blends classic farmhouse proportions with modern detailing. Board-and-batten siding and stone veneer provide texture and depth, while black window frames add contrast and a crisp, contemporary edge. The overall composition feels timeless but current, grounded yet light.

Inside, the layout favors openness and natural light. Clean lines, thoughtful material transitions, and well-scaled spaces make the home feel comfortable and intentional rather than oversized.

San Jose Permitting and Approvals

Unlike many nearby cities, San Jose does not require formal design review for single-family homes, which allowed the project to move directly into planning and building permit review. This streamlined process reduced uncertainty and allowed the family to focus on design decisions rather than procedural hurdles.

By preparing complete, well-coordinated drawings early, the project moved smoothly through building plan check, supporting a clear transition from design into construction.

The Result

The completed home is a warm, modern farmhouse designed for real family life. The two-story configuration provides the space the family needed, while the open layout supports everyday living and entertaining. Board-and-batten siding, stone veneer, and black window frames give the home a strong yet welcoming street presence.

Inside, the home feels bright, calm, and flexible. Spaces flow naturally, ceilings feel generous, and the layout adapts easily to a growing teenage son’s changing needs. The result is a home that feels personal, thoughtfully designed, and built to last.

Choosing to demolish and rebuild allowed the family to invest in a home designed specifically for how they live today, rather than compromising on an expensive existing house.

San Jose’s streamlined approval process made it possible to focus on architecture, quality, and long-term livability without unnecessary complexity.

Designing Homes That Work in San Jose

Prestin Ravid Architects designs new homes, additions, and renovations throughout San Jose and the greater South Bay and Peninsula. Our work emphasizes clear planning, high-quality design, and a deep understanding of local permitting processes.

Our Services
Start Your Project
Previous
Previous

Modern Farmhouse in Redwood City

Next
Next

Redwood City Modern Home